#5 Un nido all’aria aperta

Roma

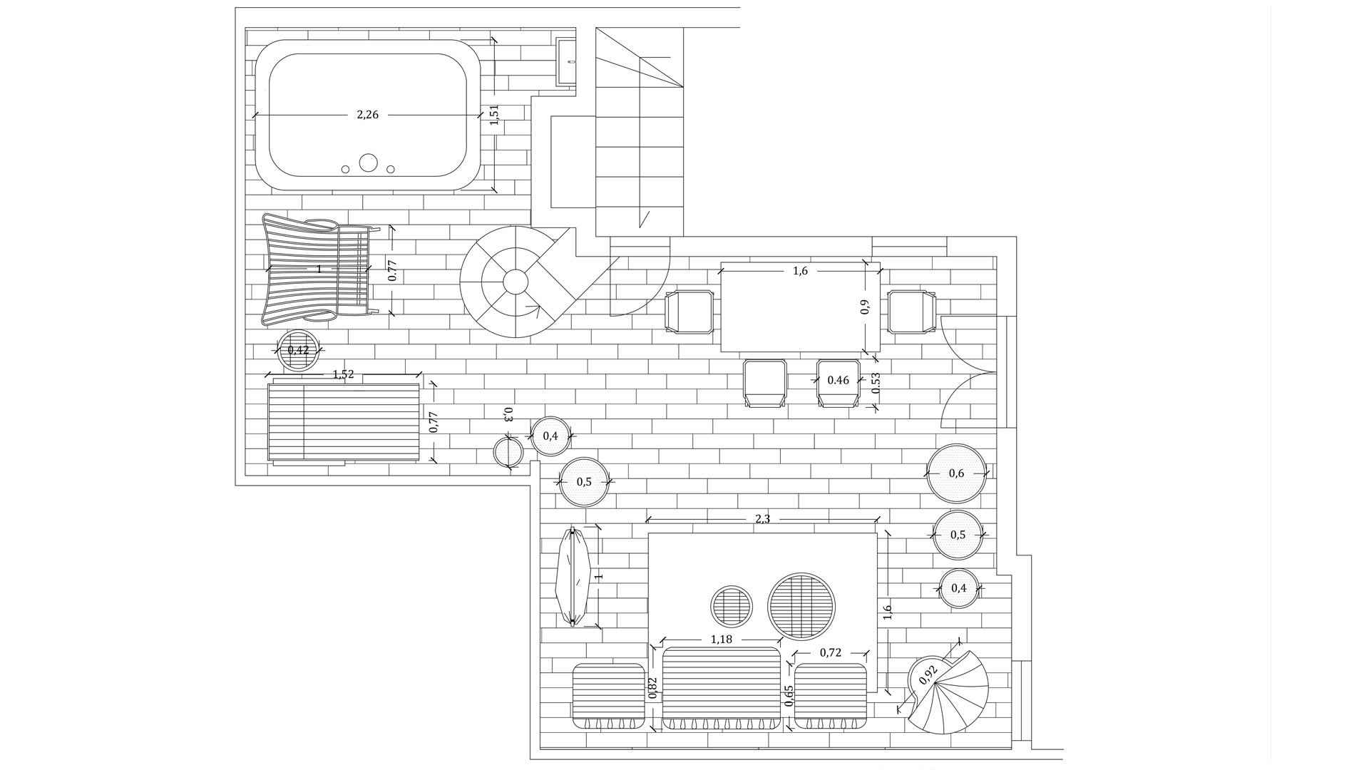
Un nido d’amore immerso nel verde in un’atmosfera accogliente e raccolta di questo terrazzo situato nel cuore pulsante di Roma.
#pareteverde #piscinaallaperto #erbaceeperenni

© 2026 Sara Lavinia Raccah | P.IVA 15615091004 - C.F. RCCSLV92B57H501T - Viale Ruggero Bacone 3 - Roma

Iscriviti alla nostra newsletter per scaricare la nostra
"Guida alle piante da interno"